Modern, luxury townhomes. The lifestyle you desire. Available in Goshen for the first time.

Goshen’s first true estate development, packaged in modern architecture. High quality craftsmanship, with luxe finishes and materials for the most discerning taste. Ideally located between urban convenience and a quiet, private setting.

Location, Location, Location

What a perfect location, at the perfect time, to own and live in a Townhome. Ideally located just off the beaten path, but very convenient to the surrounding amenities.

  • Townhome living gives the best of both worlds… open concept living, but separate sleeping quarters. The layout and amenities of the units were designed for all the modern conveniences for everyday life, but also with the ability to host parties and entertain.

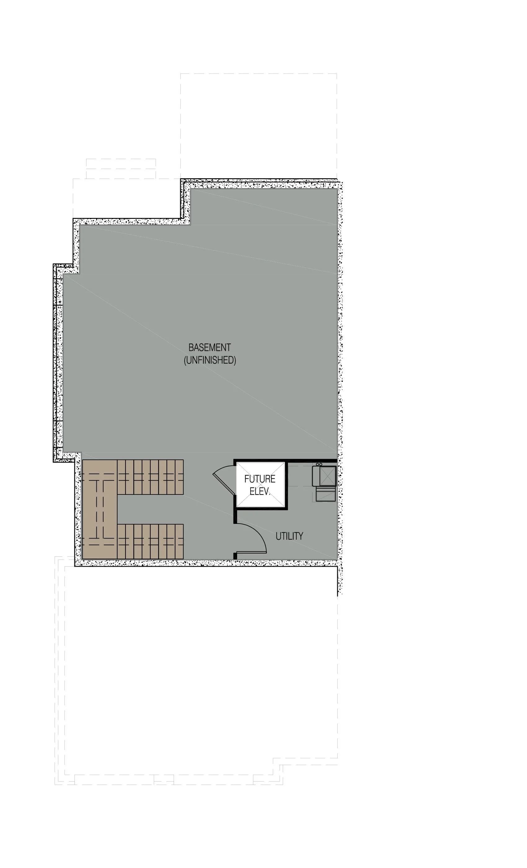
    The build-out opportunities in the basement are endless… make it yours.

  • Do you want to take a walk or ride your bicycle? You are only yards away from accessing the Millrace Trail to the north or the south.

    Walking to dinner, drinks or coffee? There are many options within just a few blocks away.

  • The exterior will be constructed in very low-maintenance materials, requiring very little attention beyond cleaning. The property is virtually stress free, with the lawn maintenance and snow plowing under the Homeowners Association.

  • This is the first of it’s kind in Goshen. And with just 6 Townhomes, in the first phase, the early adopters will own a very premier property. With the location nestled in along the Millrace, off the beaten path, it will see less traffic, feel private, and more exclusive.

The location to be…

This video does not substitute walking the site and seeing for your own eyes. However, you can get a good idea of what a perfect location this is for Townhomes. The primary view to the west, over the Millrace, will have nature and sunsets that dreams are made of.

Preselling Now!

Groundbreaking: Spring 2025

Contact us for more Info

A Units: +4,400sf of Upscale Living

B Units: +4,270sf of Upscale Living

C Units: +4,200sf of Upscale Living

Floor Plans

CONTACT US…

Don’t miss the chance to live the life you didn’t think was possible in Goshen. We are ready for you, and are accepting deposits to hold your Townhome.